Verksted Logg inn Retur Betaling Frakt/hjemkjøring

65A Sakseløfter - 4.Tonn. 3-fas 230/400 volt

Sku. EE 65A.40T.M
107 670 ,-
inkl mva
    Betal enkelt med eller
    Tilgjengelighet: Restordre – blir sendt når den kommer på lager. Beregn frakt
    Hent pris
    Vi har ingen bekreftet dato for levering.
    Klikk og hent – info
    Ordren din kan hentes på vårt lager - Østre Rosten 72, 7075 Tiller Les mer
    Beskrivelse

    65A Sakseløfter - 4.Tonn. 3-fas 230/400 volt fra . Produktnummer EE 65A.40T.M. Kategorien er 216198.

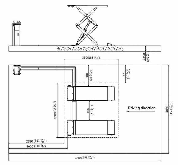
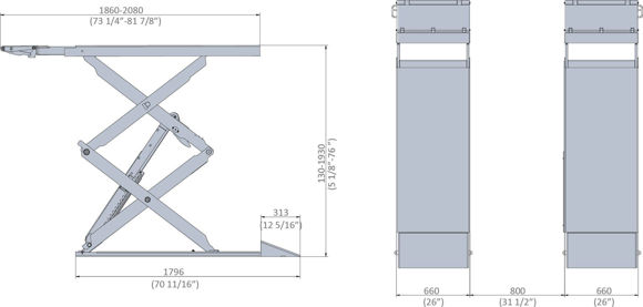
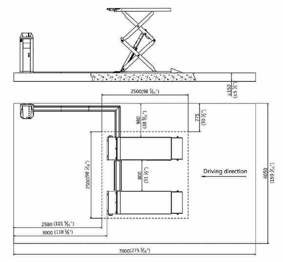
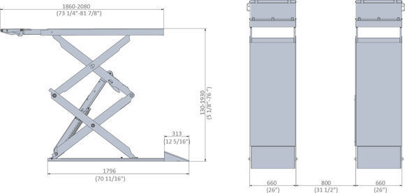
    PRO line - Løftebukk for bilverkstedet Solid og plasseringsvennlig løftebukk for det profesjonelle bilverkstedet. Lukket kabinett for aggregat. Ekstra «start steg» i saks, gir maks løft fra start. Doble hydraulisk løftesylinder og mekanisk lås i hver saks. Hydraulisk synkronisert og elektrisk synkroniseringsbeskyttelse. Muligheter for å vippe opp og låse kjøreramper slik at lange biler kan løftes (maks 500kg/rampe). Ekstra kraftig variant som også løfter de tyngre bilene. Ekstra kjøreramper anbefales til dette produktet, varenr: EE 65A RAMP 2 års garanti. Se video: "YouTube video player" "https://www.youtube.com/embed/CPRLf-p1IyU?si=WtcgPK-Qcl0navPq" Tekniske data: Løftehøyde: 1930mm Min høyde: 130mm Løftekapasitet: 4000kg Strøm: 3,5Kw 3-fas 230V/400V (min. 25/16A C sikring) Luftforsyning: 6-8bar Løftetid: Ca 45sek. Bredde utvd: 2120mm (ved anbefalt montasje.) Bredde (anbefalt) mellom platformer: 800mm Mål på hver platform: 660mmx1475mm (2100mm m/kjøreramper oppe) Farge: RAL 7016 mørk grå farge. Mål på forsendelse: Kolli 1:1980x750x410 1000kg Kolli2: 510x480x1200 84kg.
    Kontakt oss